目次
物件概要
売戸建住宅
価格
800万円
| 交通 | 高山駅 4.3km |
|---|---|
| 所在地 | 高山市松之木町1582 |
























建物物件概要
| 学区 | 東小学校・東山中学校 |
|---|---|
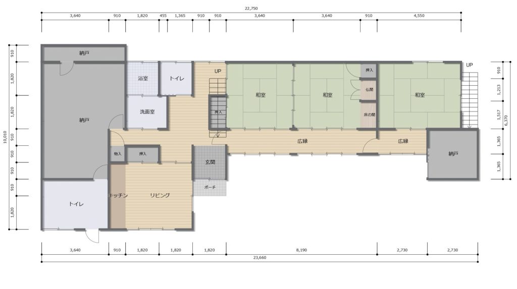
| 間取り | 店舗:厨房、客室、トイレ 住宅:10LDK |
| 建物面積 | 337.11㎡(102.15坪) |
| 土地面積 | 公簿 563.24㎡(170.68坪) |
| 建物構造 | 鉄骨・木造亜鉛メッキ鋼板葺 3階建 |
| 築年月 | 1974年(築51年) |
| リフォーム | 増築(1979年) |
| 設備関係 | 電気 上水道 |
| 備考 | 凍結等により水道管が破損しているため、水道が利用できない部分があります。 建物の増築部分が未登記となっています。 水路上を通路として利用するため、法定外公共物使用許可を取得しています。(2,800円/年) |
間取り図



物件詳細
| 土地権利 | 所有権 |
|---|---|
| セットバック | 無 |
| 私道 | 無 |
| 接道状況 | 北 幅員 6.0m 公道 接面 24.0m |
| 取引様態 | 媒介 |
| 都市計画 | 非線引区域 |
| 用途地域 | 指定無し |
| 最適用地 | 住宅用地 |
| 建ぺい率 | 60% |
| 容積率 | 200% |
| 地目 | 宅地 |
| 現況 | 空家 |
| 引渡し時期 | 相談 |
| 情報更新日 | 2026年1月19日 |
| 次回更新予定日 | 2026年2月2日 |
